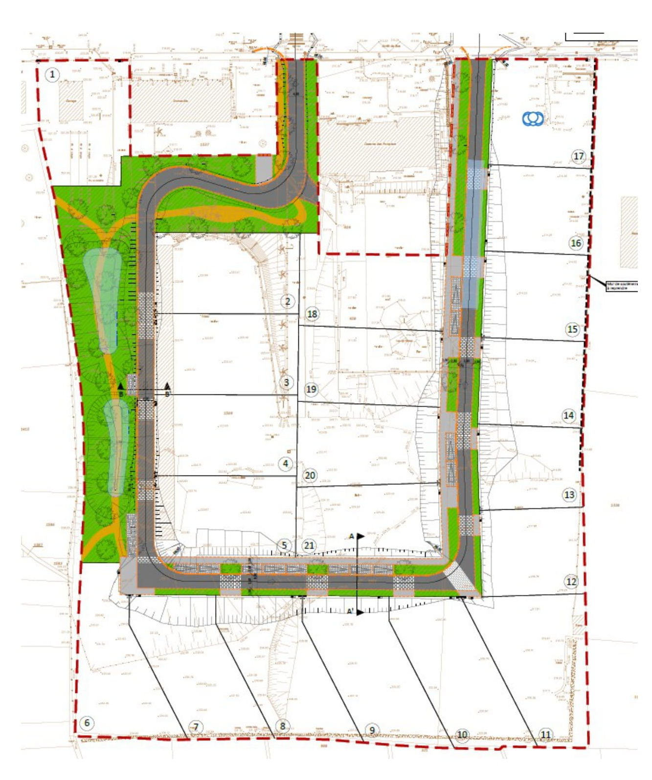
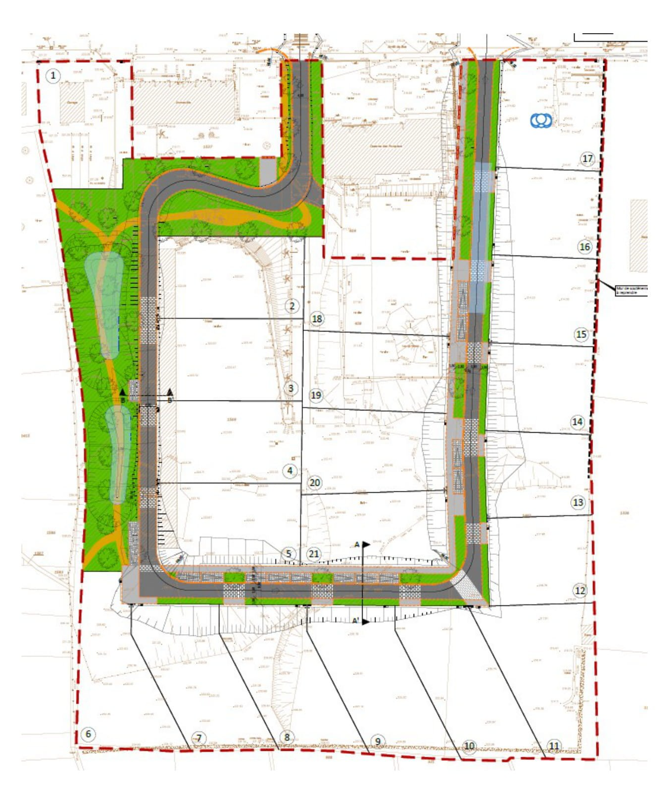
Création d'un lotissement à Méréville à 15 kms de Nancy (54)
"Le Petit Verger"
- Maitre d'ouvrage : Nexity
- Mission de maitrise d'œuvre de la phase conception à la fin de réalisation de travaux
- Mise en place d'une voirie à double sens en entrée et en sens unique à l'intérieur
- Conception des réseaux humides (eaux usées, eaux pluviales, eau potable) et des réseaux secs (éclairage, gaz, télécom, basse tension) conformément aux prescriptions de la Communauté de Communes Moselle et Madon
- Réalisation du Dossier Loi sur L'Eau pour la gestion des eaux usées et des eaux pluviales en concertation avec la Communauté de Communes Moselle et Madon

