Misson de maitrise d'œuvre complète (AVP jusqu'à AOR)
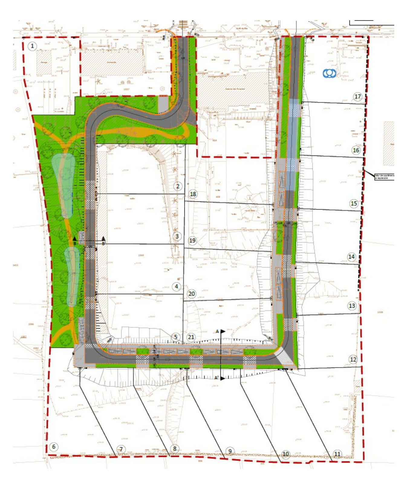
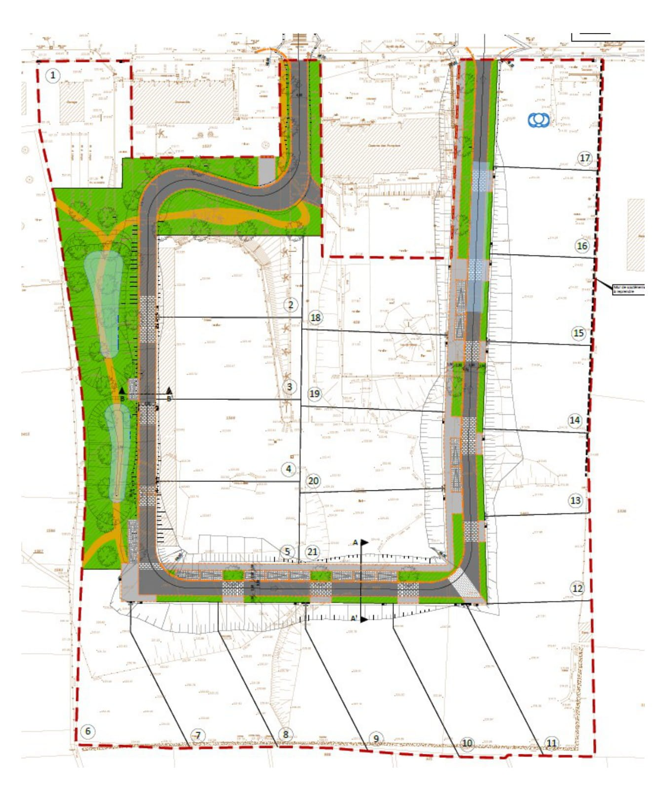
Création de lotissement à Fléville -Devant-Nancy à 15 kms de Nancy (54)
"Les Pâquis de Manonchamp"
- Maitre d'ouvrage : Nexity
- Mise en place de voiries à double sens et de voiries partagées à sens unique avec stationnement de part et d'autre
- Conception des réseaux humides (assainissement, eau potable et défense incendie) et des réseaux secs (éclairage, télécom, gaz, basse tension) conformément aux prescriptions de la Métropole du Grand Nancy
- Réalisation du Dossier Loi sur L'Eau pour la gestion des eaux usées et des eaux pluviales en concertation avec la Métropole du Grand Nancy

