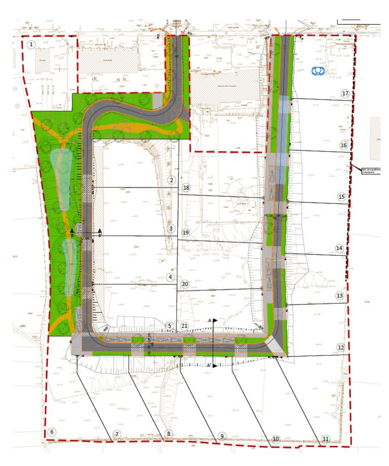
Misson de maitrise d'œuvre complète (AVP jusqu'à AOR)
Création de lotissement à Tomblaine à 2.5 km à l'Est du centre de Nancy (54)
"Faubourg Sandor Kiss"
- Maitre d'ouvrage : ACQUYS
- Mise en place de voiries partagées avec stationnement en alternance de part et d'autre
- Conception des réseaux humides (assainissement, eau potable et défense incendie) et des réseaux secs (éclairage public, télécom, gaz, basse tension) conformément aux prescriptions de la Métropole du Grand Nancy
- Réalisation du Dossier Loi sur L'Eau pour la gestion des eaux usées et des eaux pluviales en concertation avec la Métropole du Grand Nancy

