Nos missions ?
Etudes techniques spécifiques
Diagnostics hydrauliques et VRD ; études pré-opérationnelles ; études hydrauliques, modélisations et notes de calculs hydrauliques dans les domaines de l’eau potable, de l’assainissement et des eaux pluviales ; audits d’opérations…
Réalisation des dossiers réglementaires
Permis d'aménager, Dossier Loi sur L'eau
Eau et environnement
- Eau potable
- Assainissement
- Gestion des eaux pluviales ou de la ressource
- Aménagement de cours d’eau
- Etudes hydrauliques spécifiques
- Dossiers réglementaires (Loi sur l’Eau…)
Aménagement urbain- VRD
- Enfouissement de réseaux
- Sécurisation
- Requalification urbaine
- Aménagement de zone d’habitat et d’activité
- Aménagement de carrefour et de route
- Plateformage et VRD d’accompagnement de bâtiment
Nos lotissements
Lotissement à Fléville-Devant-Nancy
62 parcelles pour 102 logement
Surface de 4,4 HT
Coût des travaux estimé à 1 500 000 € HT
Lotissement à Tomblaine
59 parcelles pour 94 logements
Surface de 3,8 ha
Coût des travaux estimé à 1 470 000 € HT
Lotissement à Méréville
Création de 17 lots
Surface de 1,3 Ha
Coût des travaux estimé à 400 000 € HT
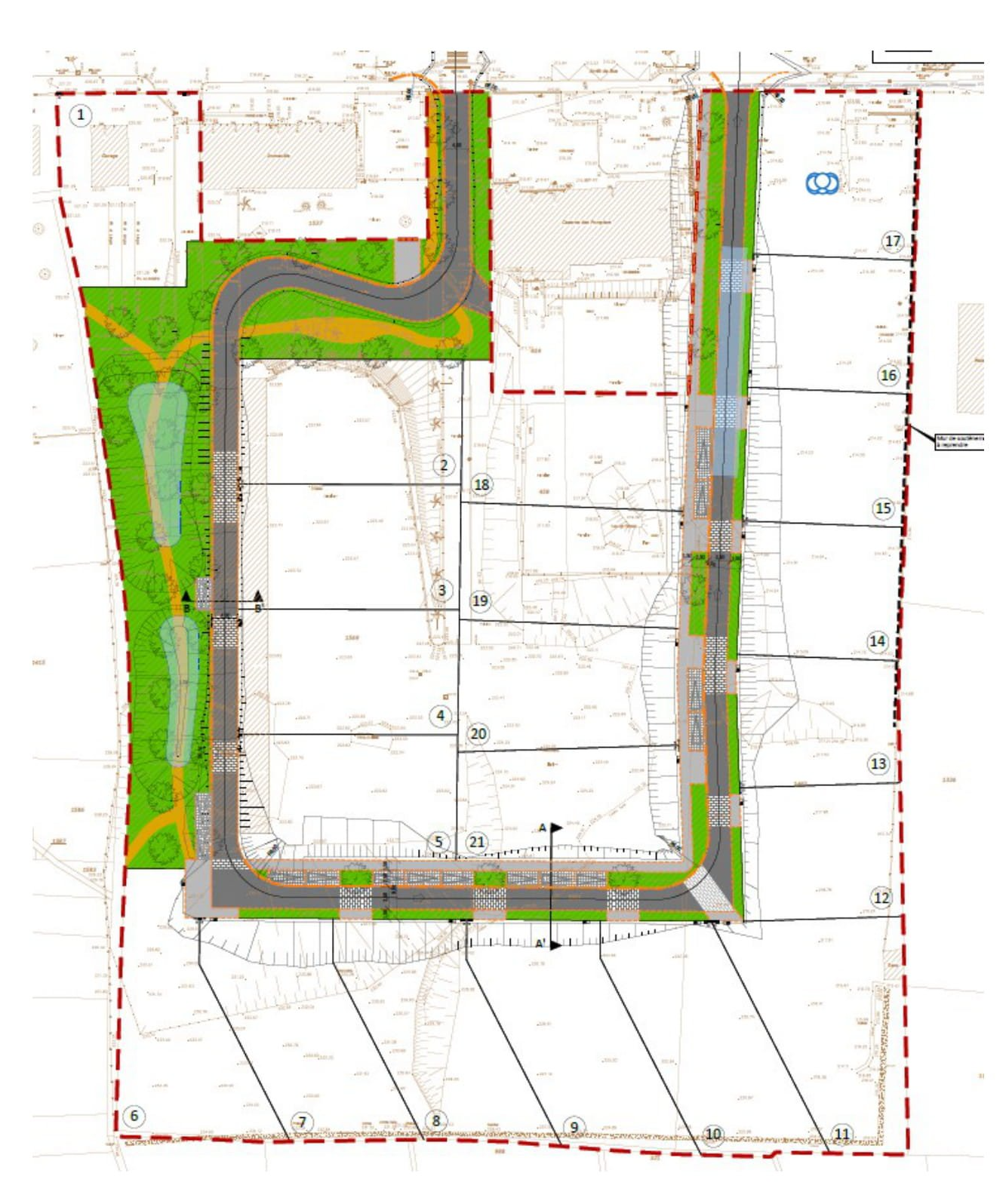
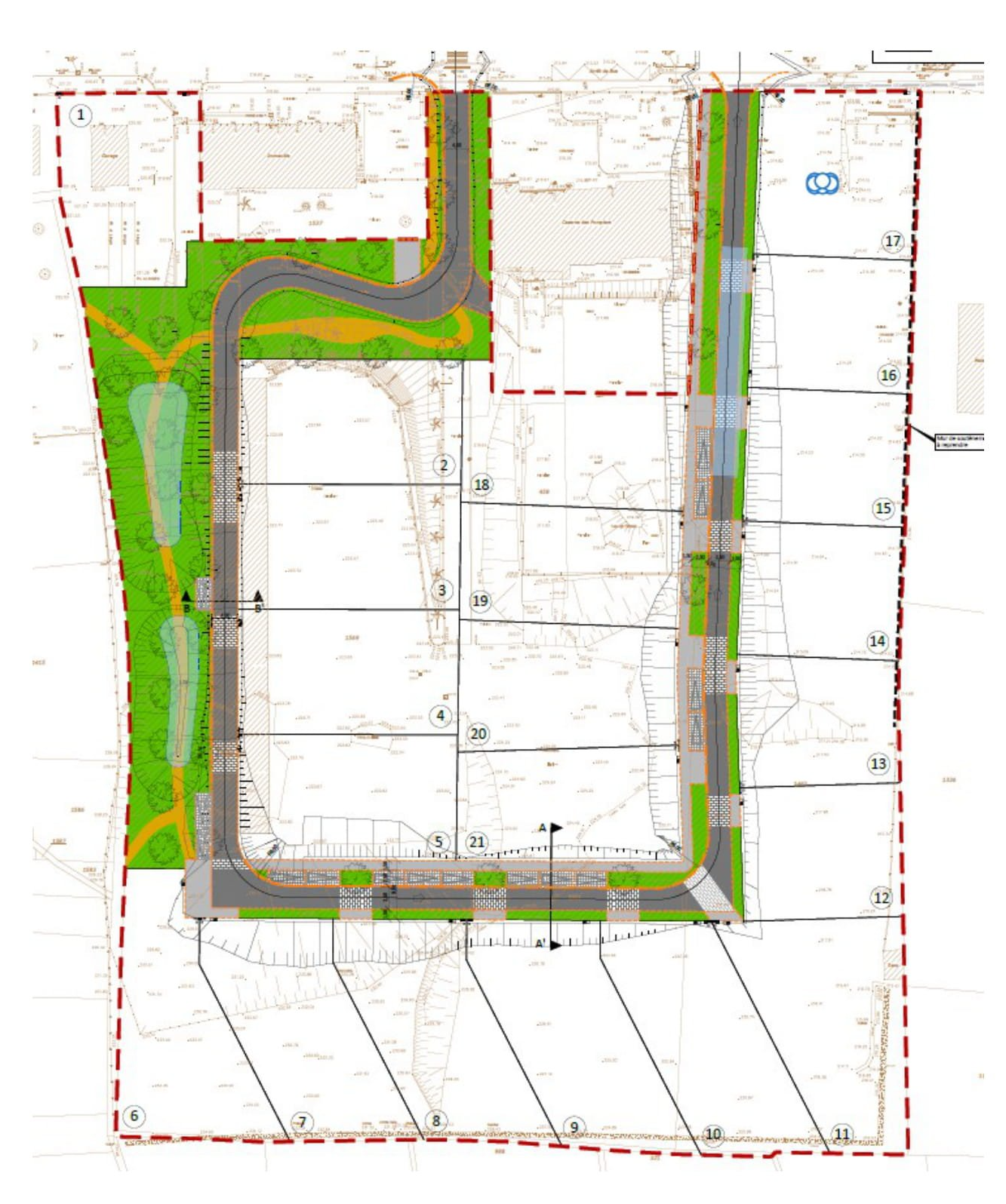
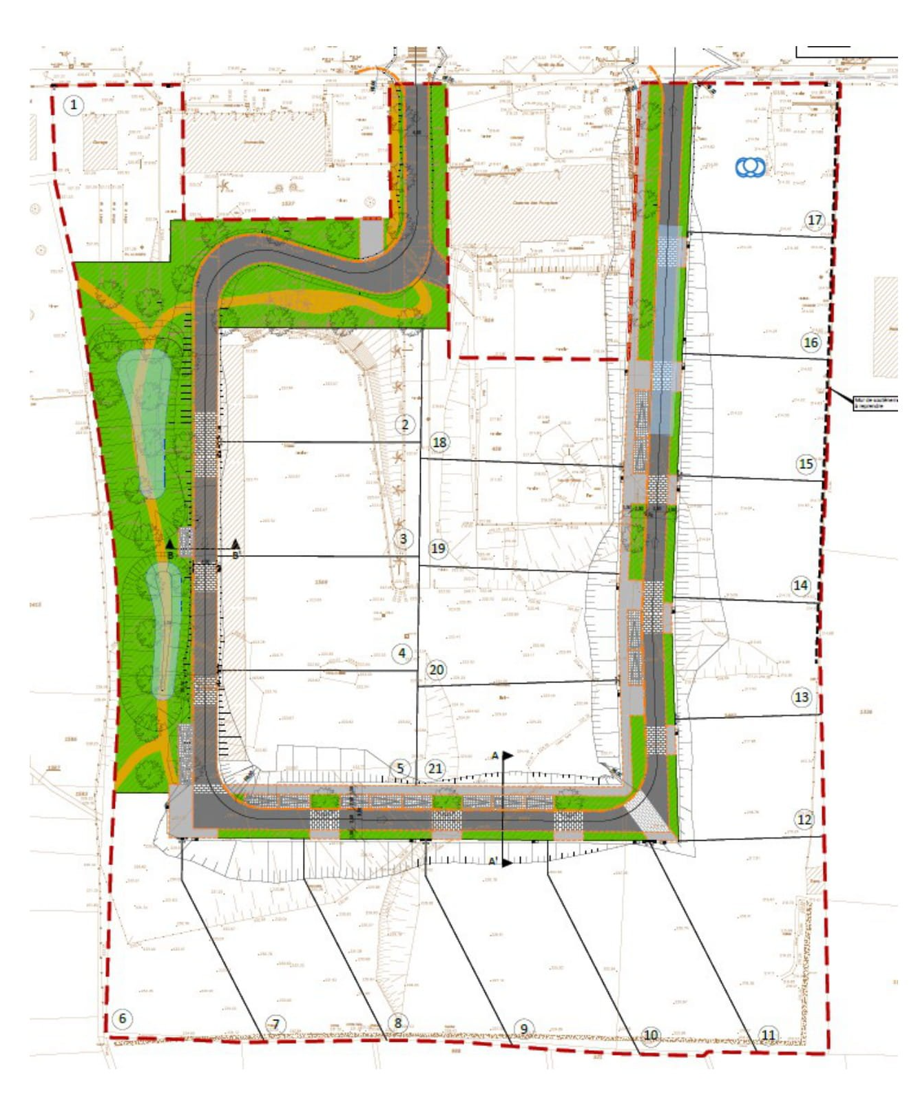
Lotissement à Marange-Silvange (57)
Création de 21 parcelles
Surface de 1,75 Ha
Coût des travaux estimé à 1 200 000 € HT
Nos projets hydrauliques
Projets d'assainissement
Projets d'eau Potable
Projets d'aménagement de cours d'eau
Réalisation de dossiers Loi sur l'Eau














